

浙江以诺电气有限公司,深耕电力行业二十余载,专业致力于35kV及以下输变电智能电力设备研发、生产、销售及数智化电力运维服务。
联系热线:188-678-10666
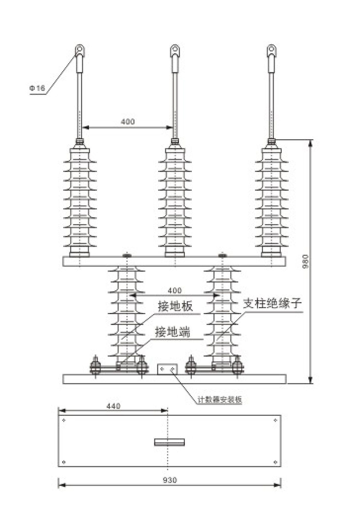
三相组合式过电压保护器是一种新颖的过电压保护设备,主要用于35kV以“下电力系统中,保护变压器,开关,母线,电动机,并联补偿电容器等电气设备,可限制大气过电压及各种真空断路器引起的操作过电压,相对地和相间的过电压均能引起到可靠的限制作用。三相组合式过电压保护器由四只避雷器组成四星型接法,从而使各相地,相间的过电压都得到保护。由于结构上的巧妙配合,使一台过电压器起到了6只避雷器的作用。同时克服了简单的三只避雷器星型接法不能更好保护相间过电压的缺点。三相组合式过电压保护器可以是有串联间隙型,也可以是无间隙型。
1、适用于户内,户外;
2、环境温度为-40°C~+409C;
3、海拔高度不超过2500m; .
4、电源频率不大于62Hz,不小48Hz;
5、最大风速不超过35m/s;
6、地震烈度7度及以下地区;
7、过电压保护器长期工作电压,应不超过持续运行电压。